Black "RM Realty of Maine" logo with stylized letters "R" and "M" above the company name, all on a transparent background.
ResidentialSingle Family ResidenceMEFalmouth04105440 Blackstrap Road, Falmouth, ME, 04105

440 Blackstrap Road, Falmouth, ME, 04105

440 Blackstrap Road, Falmouth, ME, 04105
3 beds
4 baths
$2,600,000
Request info

Basics

  • Date added: Added 1 day ago
  • Category:
  • Type:
  • Status:
  • Bedrooms: 3
  • Bathrooms: 4
  • Lot size: 4.4 sq ft
  • Year built: 1997
  • Bathrooms Full: 3
  • Lot Size Acres: 4.4 acres
  • Rooms Total: 10
  • Zoning: FF
  • County: Cumberland
  • MLS ID: 1637117

Description

  • Description:

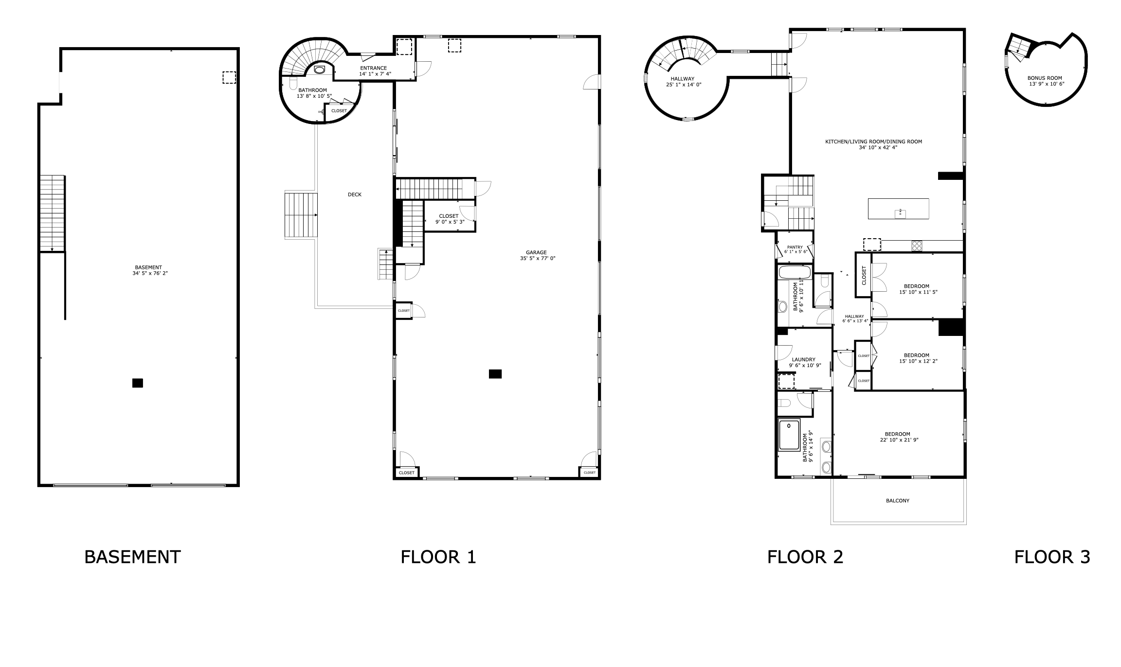
    Imagine a life where passion & prestige converge-a private retreat designed not only for living, but for showcasing the things you love most. Presented in the Fine Homes & Estates Collection, this home is nestled on 4.4 acres of pristine land. This spectacularly remodeled barndominium redefines luxury living for the true enthusiast.
    From the moment you arrive, it's clear this is more than a home—it's a ''Statement Estate''. The property is set back from the road for privacy, yet offers quick access to the cultural heartbeat of the city, the International Jetport, three private Country Clubs & the unmatched natural beauty of Maine's lakes & rugged trails. All of these conveniences are within twenty minutes; the perfect balance of seclusion & connection.
    Step past the soaring turret into the main level where the showroom takes center stage. With soaring ceilings & dramatic presence, this gallery-style space is designed to elevate your automotive, motorcycle, or marine collection into art. Whether you're entertaining guests or simply admiring your own treasures, the atmosphere is unmatched. On the lower level, form meets function in a professional-grade mechanic's garage. Complete with a car lift & multi-vehicle access, it's the ultimate workshop for anyone who believes that luxury extends to how you care for your collection.
    Crowning the estate is the third-floor residence—an exquisitely designed, condo-style retreat. Featuring three bedrooms, vaulted ceilings, & an open-concept layout, this space has been crafted with the finest materials: custom cabinetry, stone surfaces, gleaming hardwoods, & designer fixtures. Expansive windows flood the home with light & frame sweeping views of the acreage, ensuring every moment is bathed in serenity. Every inch of this property reflects high-end craftsmanship & thoughtful design, This is not simply a residence, it's a showroom, a sanctuary, & a statement—crafted for the visionary who demands nothing less than extraordin

    Show all description

Location

  • View: Fields, Scenic, Trees/Woods

Building Details

  • Building Area Total: 3580 sq ft
  • Architectural Style: Other
  • Sewer: Private Sewer
  • Heating: Heat Pump, Hot Water
  • Roof: Shingle
  • Basement:

Amenities & Features

  • Electric: Circuit Breakers
  • Flooring: Tile, Wood, Engineered Hardwood
  • Garage Spaces: 10
  • WaterSource: Private
  • Patio And Porch Features: Deck, Porch
  • Fireplaces Total: 0
  • Cooling: Heat Pump

Courtesy of

  • List Office Name: Century 21 North East

Ask an Agent About This Home

Phone
By clicking the «REQUEST INFO» button you agree to the Terms of Use and Privacy Policy

Share this property

Copy

Or share with

Contact Us
Mobile: 207-404-3368
Office: 207-942-6310

458 Main Street
Bangor, ME 04401
LICENSE #BA928013
Professional Accreditations
A black and white icon of a house with an equals sign inside, representing the Equal Housing Opportunity logo.

Copyright © 2026. Listing data is derived in whole or in part from the Maine IDX & is for consumers' personal, non commercial use only. Dimensions are approximate and not guaranteed. All data should be independently verified. © Maine Real Estate Information System, Inc. All rights reserved.

Website Designed by CGC

Reset password

Enter your email address and we will send you a link to change your password.