Welcome to 48 Main Rd in Charleston! Steeped in history and charm, this 1800s center-hall colonial was once the Charleston Hotel and a boarding house before becoming a beloved family home. For over 20 years it has been filled with warmth, laughter, and peace--and now it's ready for its next chapter.
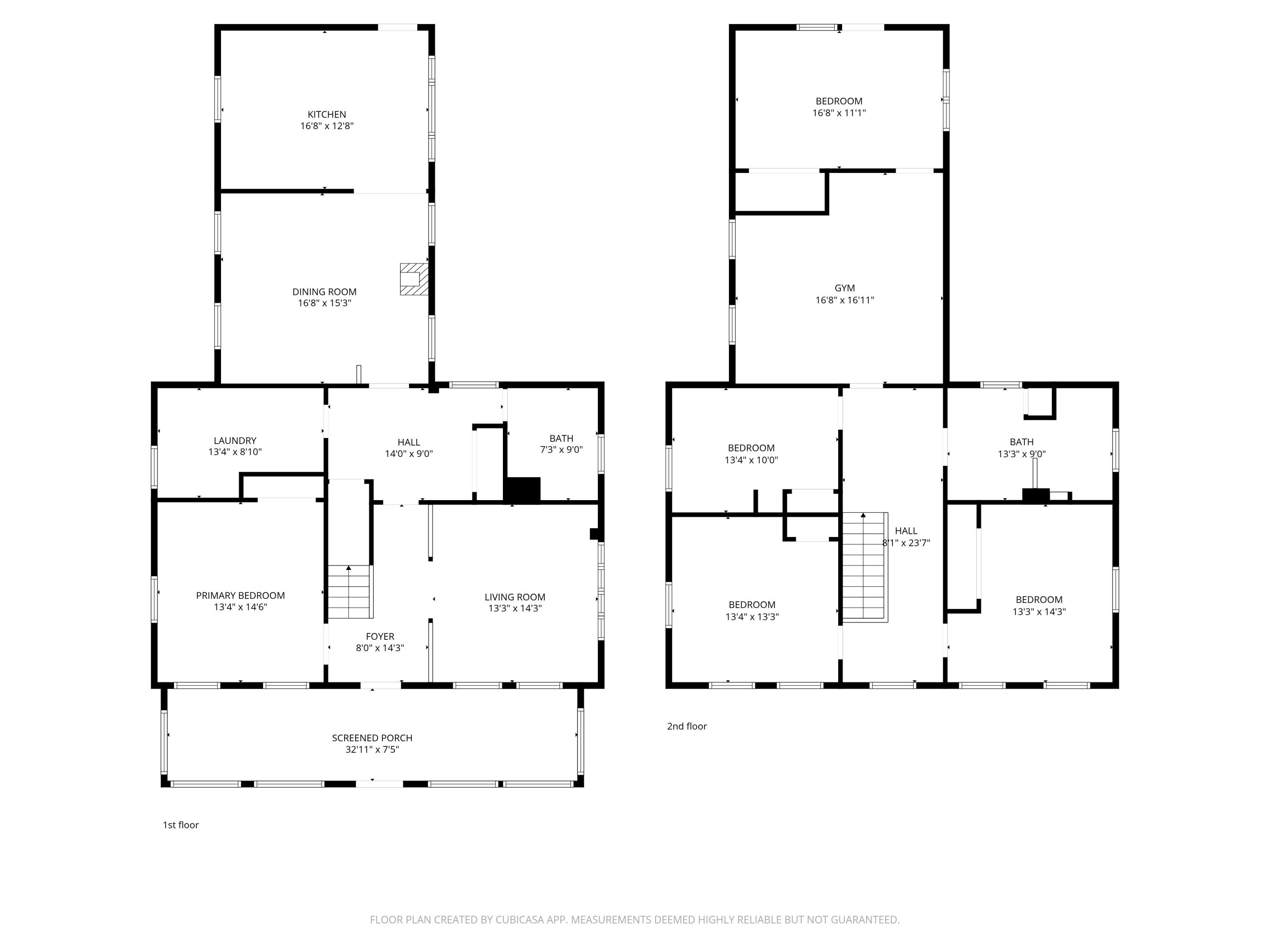
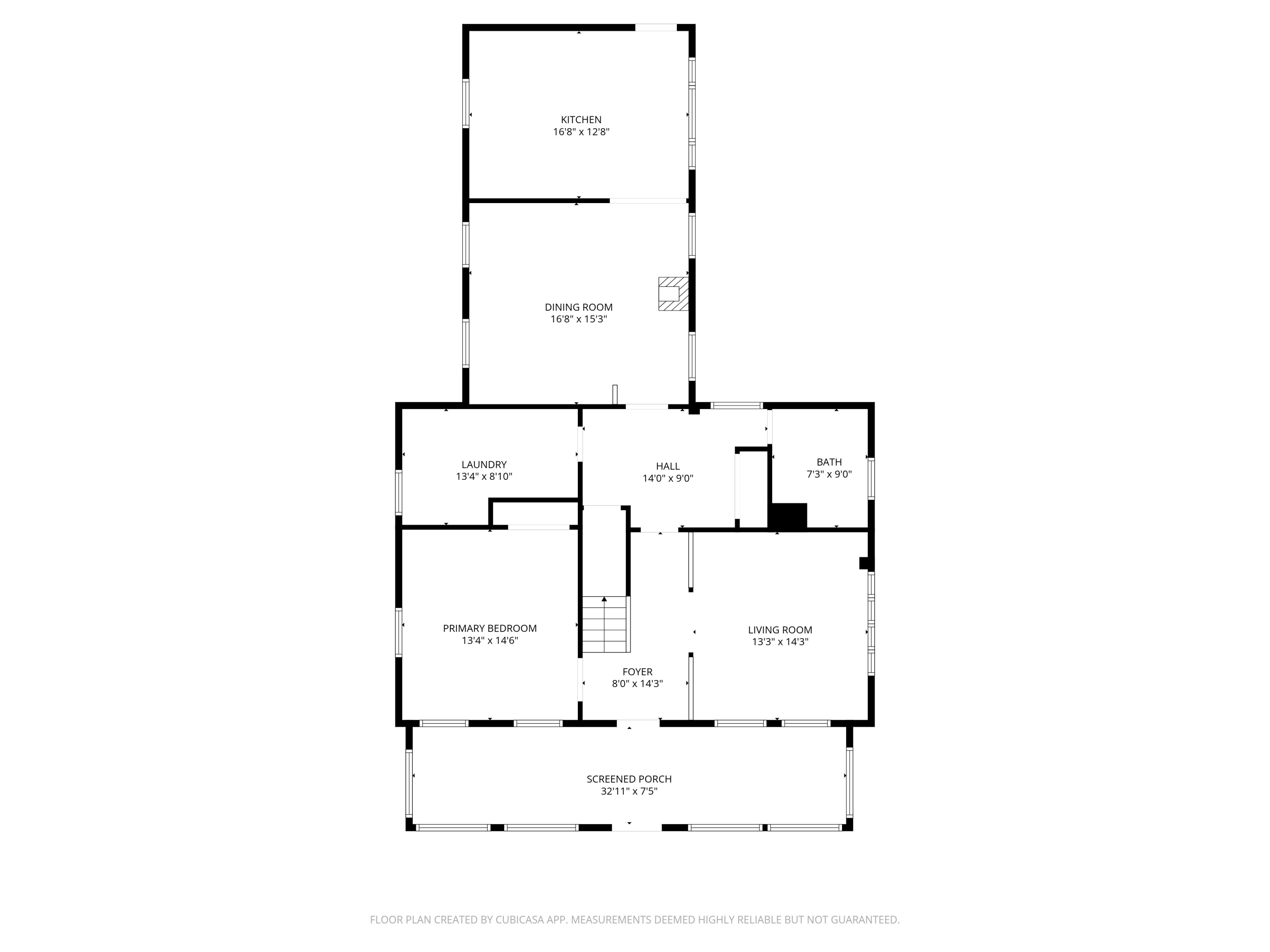
With 2,780 square feet of living space, this spacious home offers 5 bedrooms (including one on the first floor), 2 full bathrooms, and a large fenced backyard--perfect for kids, pets, and gatherings.
The first floor features a bedroom, living room, center hall with cedar storage closets and basement access, a large laundry room with two closets, and a full bath with updated flooring and fresh paint. The formal dining room flows into a generous eat-in kitchen with great counter space and access to a recently rebuilt deck overlooking the beautiful fenced backyard. The home sits on a full acre with walking trails, wildflowers, and peaceful sunrises.
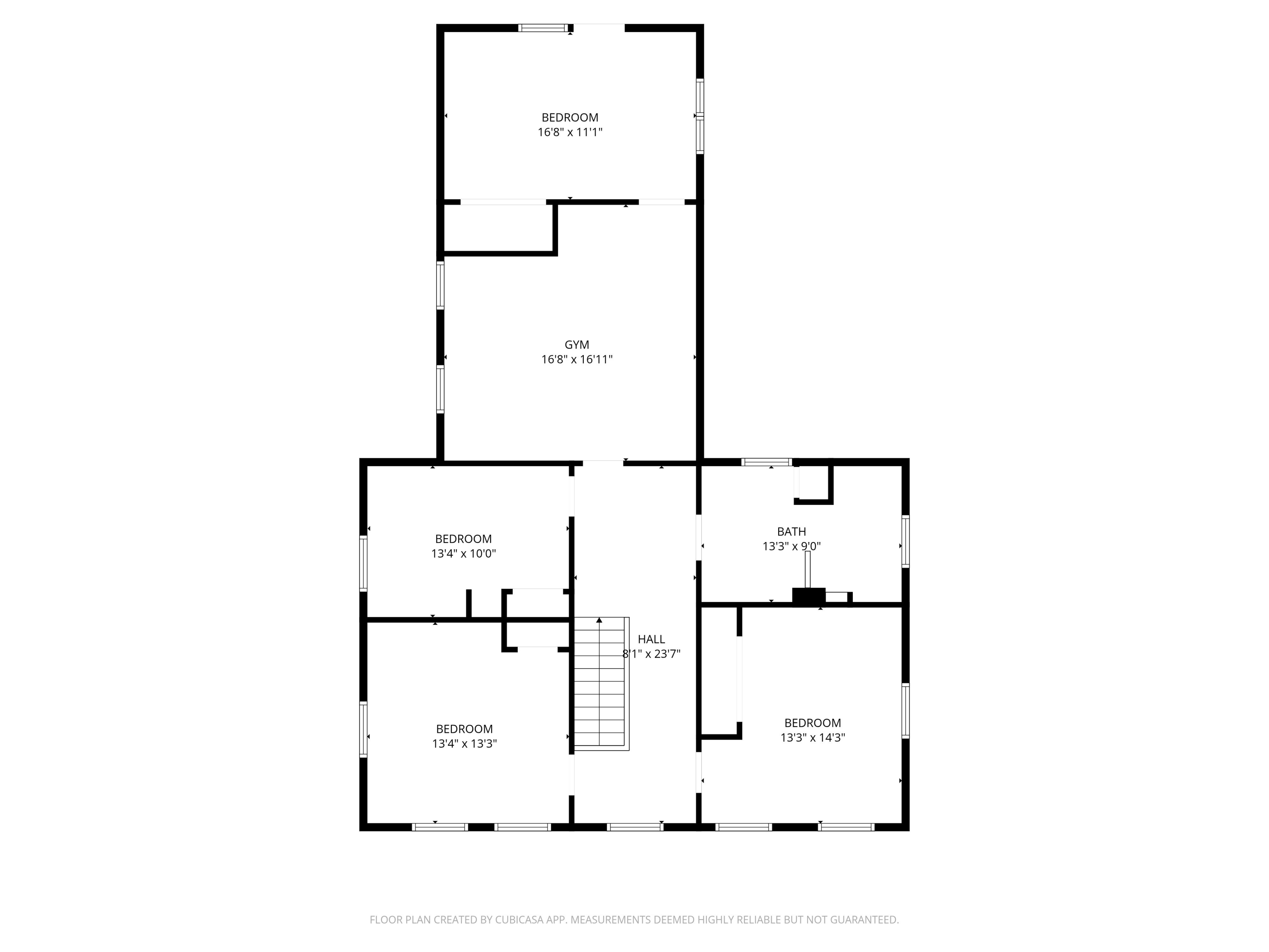
Upstairs you'll find four bedrooms, two of which have been fully remodeled, along with a beautifully renovated full bath featuring tiled shower, dual vanities, and custom shelving. A versatile bonus room offers space for a family room, gym, or additional bedroom, and another bedroom at the back of the home includes exterior access to the second-floor deck--perfect for quiet evenings or stargazing.
Major updates include a brand-new roof (2024), newly built and sealed wood fence (2024), recently replaced hot water heater and well pump, and a regularly serviced furnace. Heating options include an oil furnace and a cozy pellet stove.
Located across from Faith Bible College International, the home is just 30 minutes to Bangor, 15 minutes to Dover-Foxcroft, and 40 minutes to Newport and I-95. Charleston residents pay low taxes (1,800 with homestead exemption) and are part of the highly respected RSU 68 School system, which includes Sedomocha and Foxcroft Academy. Don't miss your chance to call this home.





Copyright © 2026. Listing data is derived in whole or in part from the Maine IDX & is for consumers' personal, non commercial use only. Dimensions are approximate and not guaranteed. All data should be independently verified. © Maine Real Estate Information System, Inc. All rights reserved.
Website Designed by CGCto save your favorite homes and more
Enter your email address and we will send you a link to change your password.