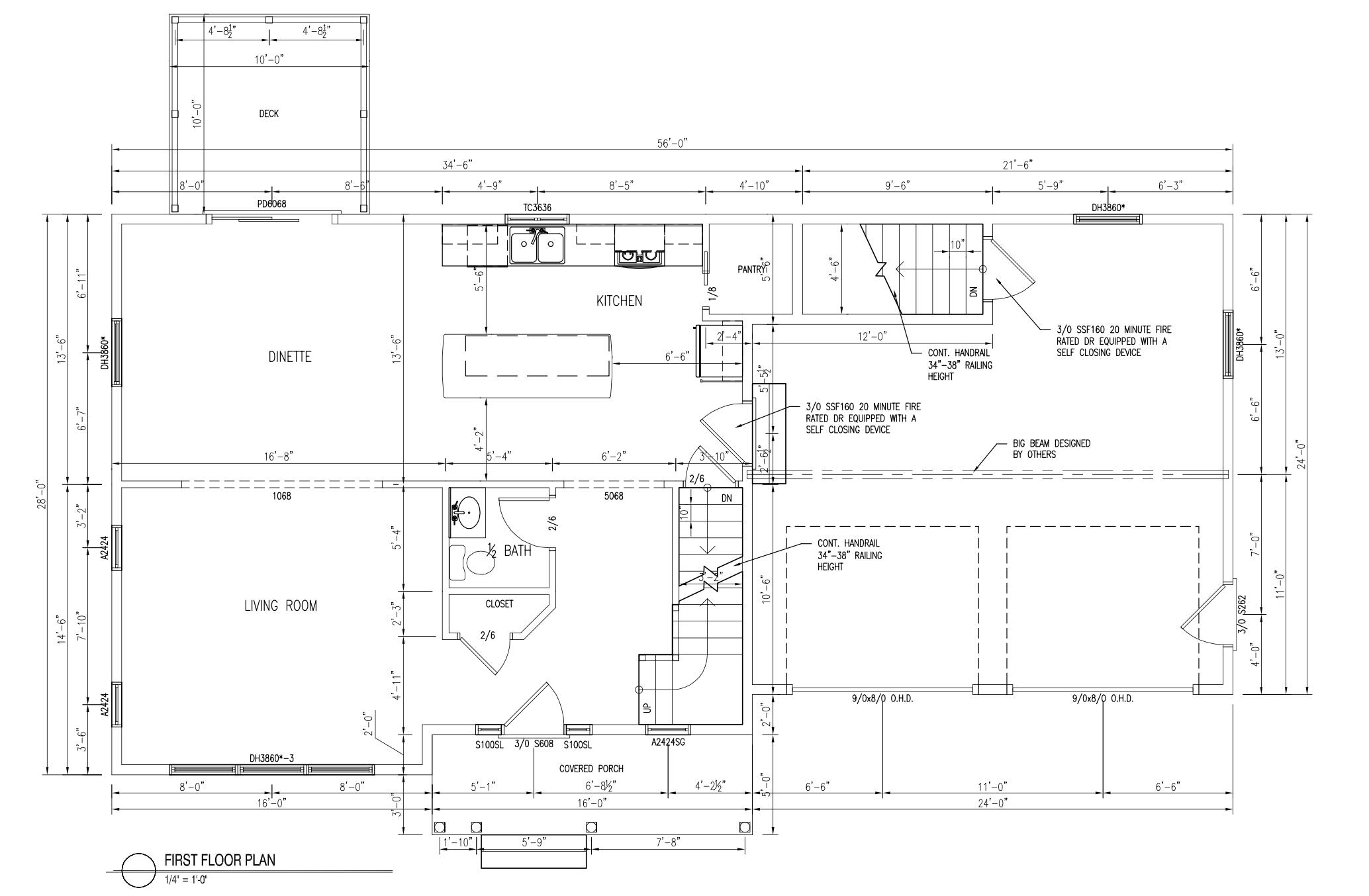
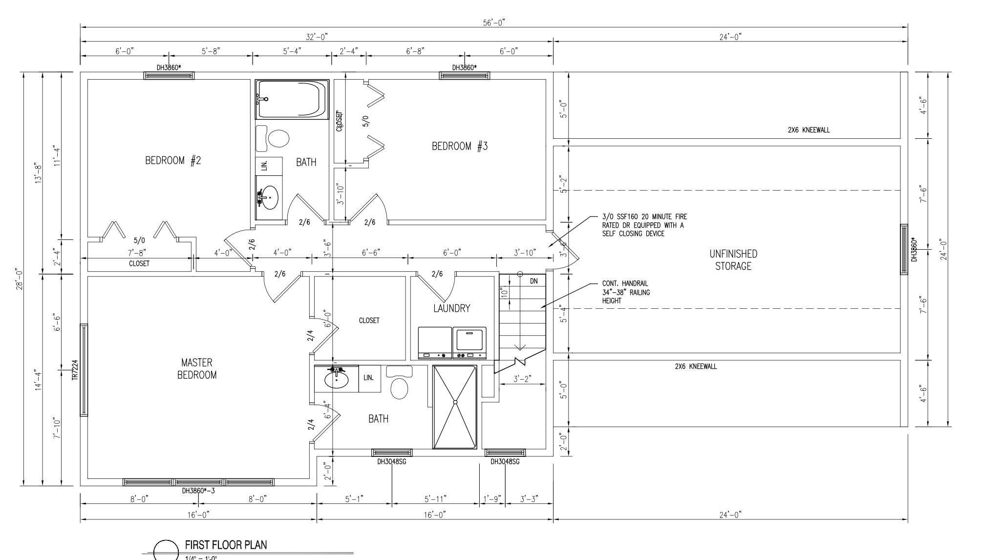
Currently under construction in a desirable & established neighborhood, this stunning new home features a thoughtfully designed open-concept main floor ideal for modern living. The second level offers a spacious primary suite, two additional bedrooms, and a versatile flex room perfect for a bonus area, guest space, or home office. Both the primary bedroom and living room are equipped with heat pumps for air conditioning. The basement includes a daylight window and offers excellent potential for future finishing, providing additional living space. The kitchen will stand out with high-quality cabinetry accented by crown molding, quartz countertops, and stainless steel appliances. Both upstairs bathrooms will feature stylish tile flooring, and an insulated two-car garage adds everyday convenience. Finish work is about to begin, and construction is well underway- there's still time to personalize finishes and make this home your own. Estimated completion is within 60 days.
Show all description



Copyright © 2026. Listing data is derived in whole or in part from the Maine IDX & is for consumers' personal, non commercial use only. Dimensions are approximate and not guaranteed. All data should be independently verified. © Maine Real Estate Information System, Inc. All rights reserved.
Website Designed by CGCto save your favorite homes and more
Enter your email address and we will send you a link to change your password.
